StartDer Jugendtraum2018 – Oktober – Projekt – Terrasse …. 2018 – Oktober – Projekt – Terrasse …. 2 Kommentare / Der Jugendtraum, Terrasse / Von 2018 – 10 – 30 Das Projekt Terrasse beginnt….noch ist Alles offen…so ähnlich soll es werden 🙂
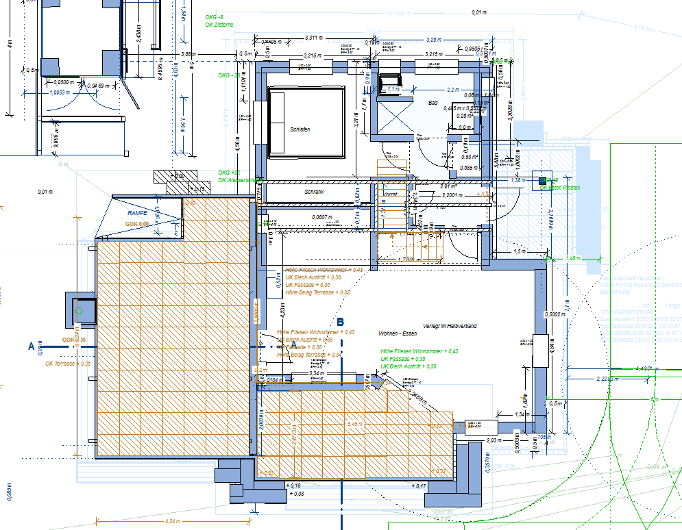
uhugiku 30. Oktober 2018 um 23:58 Uhr keine Stufen bitte 🙁 Und was ist das für ein Kasten?! Klimaanlage? Oder Backofen? Antworten
uhugiku 31. Oktober 2018 um 0:02 Uhr oh – da ist ja eine Rampe 🙂 Aber wie kommt man da hin? Antworten
keine Stufen bitte 🙁
Und was ist das für ein Kasten?! Klimaanlage? Oder Backofen?
oh – da ist ja eine Rampe 🙂 Aber wie kommt man da hin?